di loretoARCHITECTURE

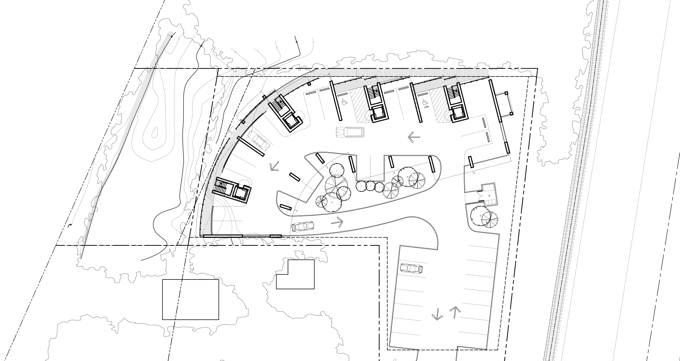
Manhattan Beach Condominiums are located on an ocean front property in Rockaway Beach, Oregon. The project had to overcome floodplain and local height restrictions to meet the owner’s requirements for sixteen units with parking, constructed in a sustainable manner overlooking the ocean. A state park to the north allows for long term unfettered ocean views along the west and north edges of the site. Access is from the east along Highway 101, the coastal highway that runs the length of the State. Fan shaped to fit the site setback requirements and for better view capability, the building sits against the west and north edges of the property while a storm water bioswale and car access fill the rest of the site.

 

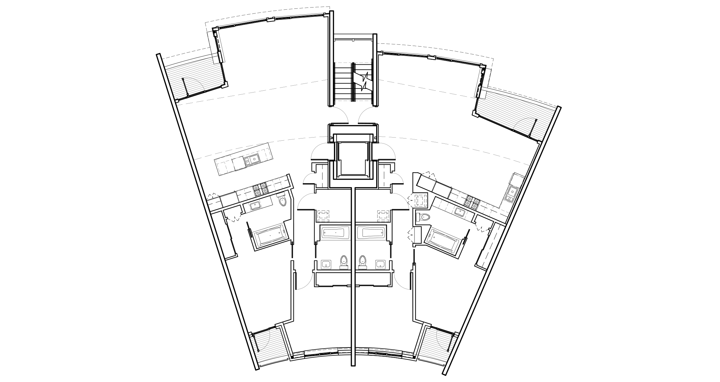
A thirteen foot floodplain dictated placing the parking underneath the structure. A 24 foot height limit, measured from the base flood elevation, constrained the project to two floors. The building consists of on grade parking for 33 cars (a zoning requirement) and two floors of eight condominiums each. Averaging 1200 square feet, each condo consists of an open living area overlooking the Pacific and two bedrooms and baths facing inland. Unique to this project is the unit access: Four elevators serve the building so that two units on each floor are served by the same elevator; and the elevator door is the unit’s front door. A single stair for every four condos gives direct access to the beach beyond.

status

Completed

 

client

MBR Development, Inc.

 

location

Rockaway, Oregon

 

budget

$6.9 Million

 

size

23,000 s.f.

 

team

Chris DiLoreto

Stephanie Fitzhugh

Chris LoNigro

Tracy Orvis

Jason Swift

 

 

civil

 

structural

 

acoustics

 

PSY, Inc

 

planning

Peter Finley Fry

 

waterproofing

 

imagery

di loretoARCHITECTURE