di loretoARCHITECTURE

ShoeBOX is an idea centered in the joy of an investigation into how to provide the most housing on a very small site in a way that human beings want to live. A somewhat slippery notion. And at first glance the idea might be easy to miss. What makes this more than just another apartment building? We think the answer is in the surprising way it solves for urban density—one of our deeply held tenets—by zeroing in on customization.

 

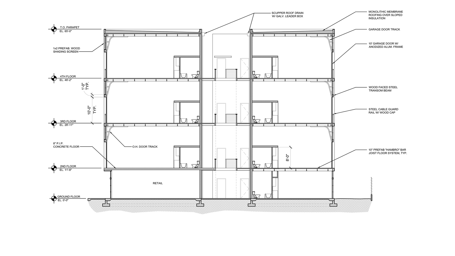
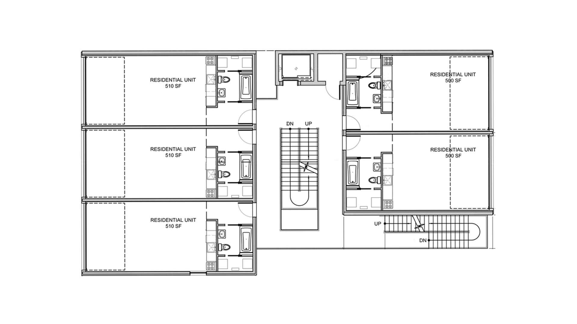
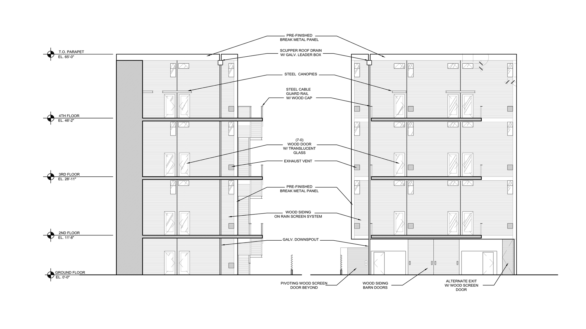
We start with a single city lot; 50 feet by 100. On a site you might normally place 5 units we found room for 17 (plus 2 retail)—and we did that by emphasizing volume over floor space. 17’ high ceilings turn a 16’ x 32’ space (512 ft2) into 8700 cubic feet ergo “Shoebox.” But within that shoebox the volume allows for all kinds of iterations and reiterations, spacial configurations and new wall construction. The permanent walls that form the bathroom, utility, and kitchen area are kept at normal heights to again allow the tenant to exploit that volume in whatever way they’d most like. And the operable garage door facade offers a sort of full spacial expansion that belies the small foot print of each plan.

 

Alain De Botton writes in his book The Architecture of Happiness that “belief in the significance of architecture is premised on the notion that we are for better or for worse different people in different places. And on the conviction that it is the architecture’s task to render vivid to us who we might ideally be.”

 

Maybe that’s heady stuff for an apartment building. But still the question arises; if the architecture might tangibly affect our being, shouldn’t the affected being have a say in its design?

status

Concept

 

client

Jon Gustafson

 

location

Portland, Oregon

 

budget

$3 Million

 

size

15,000 s.f.

 

team

Chris DiLoreto

Chris LoNigro

 

civil | structural

 

geotechnical

Richard Graves

 

imagery

di loretoARCHITECTURE